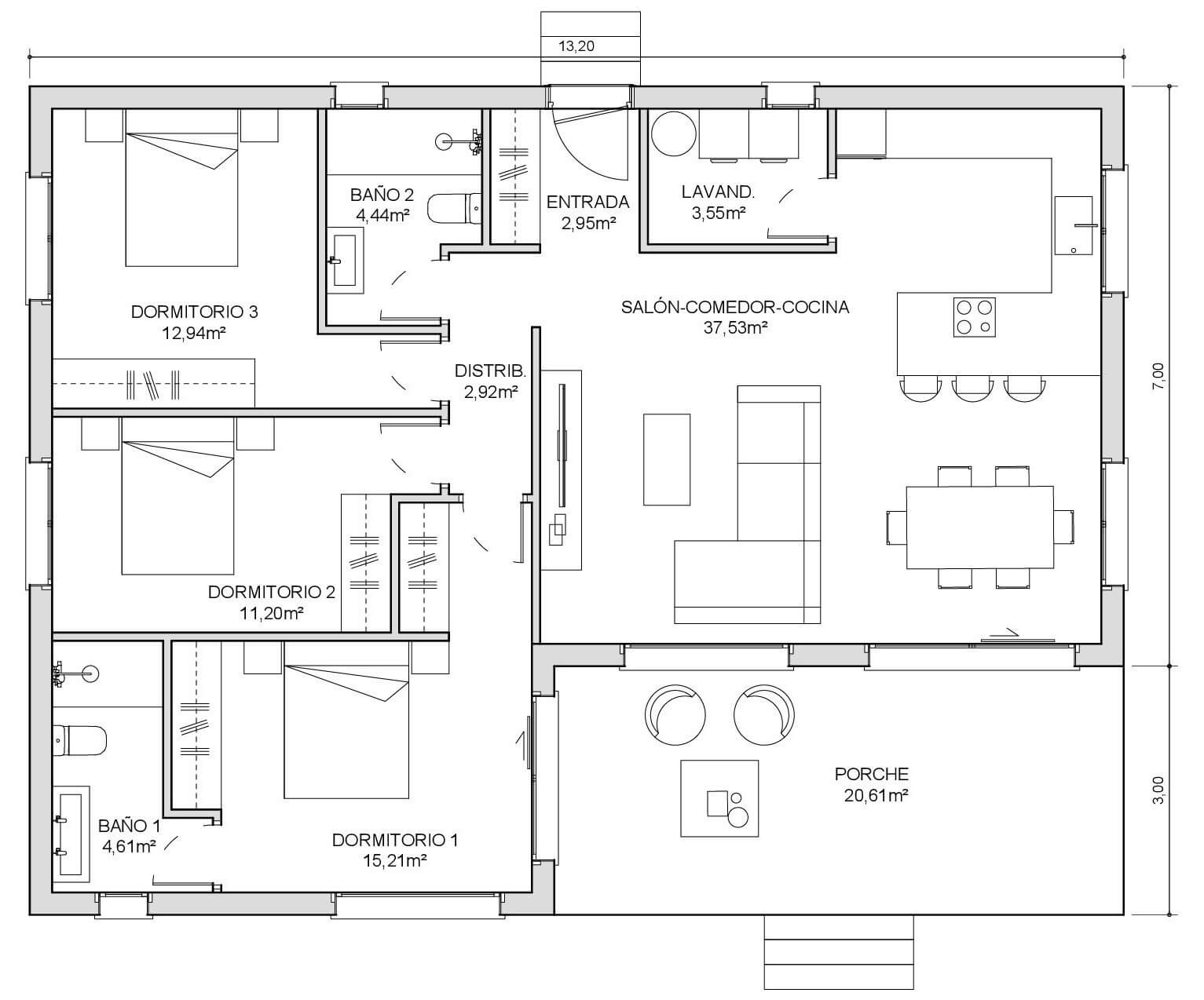
• 1 planta

Viena

Viena

132 m²

Superficie construida
2
3
  • 1 planta

Viena

132 m²

Superficie construida

132 m²

Superficie construida
  • 111,39 m²   vivienda
  • 20,61 m²    terraza