• 1 planta

Santander 155

Santander 155

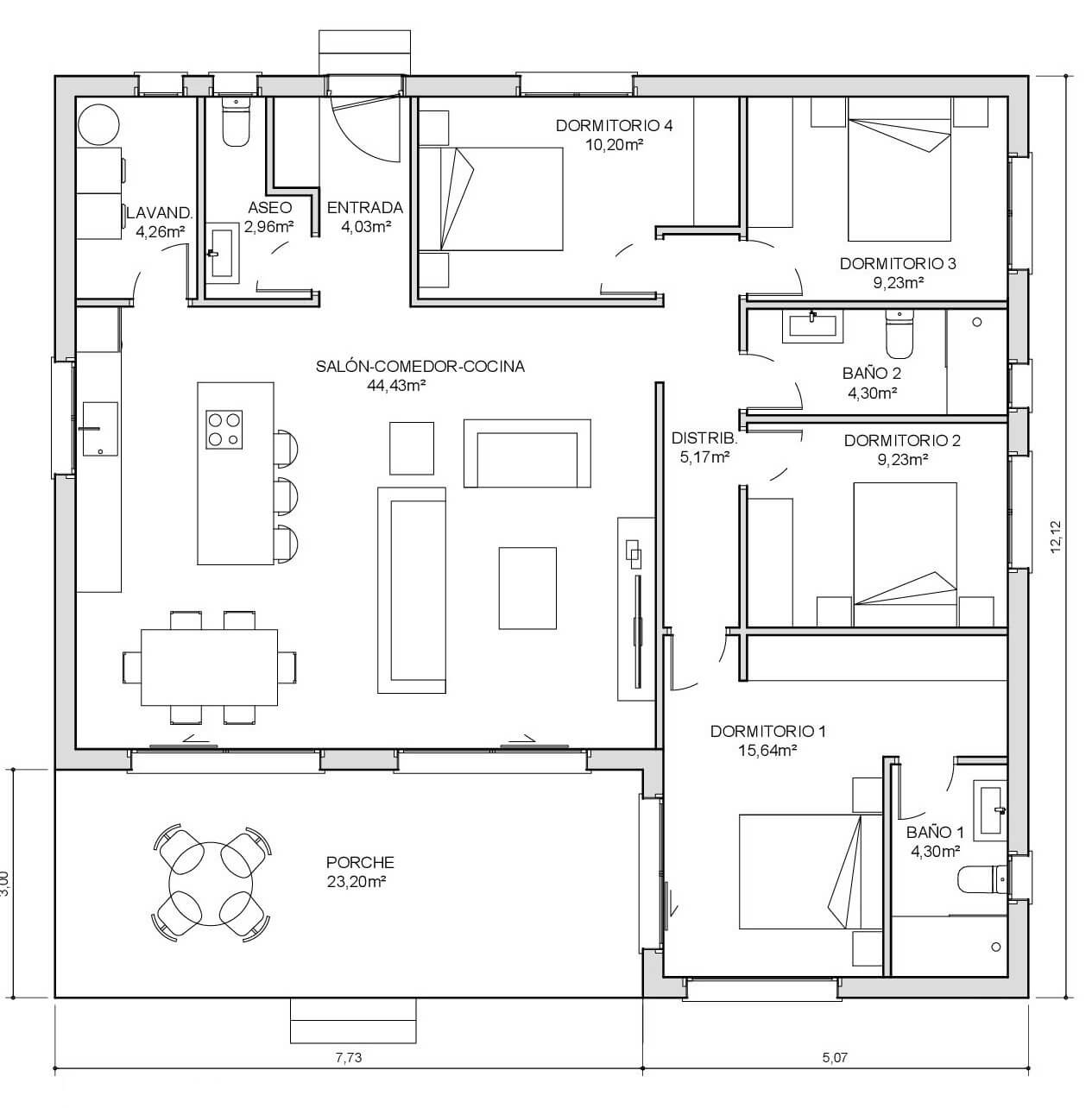
155 m²

Superficie construida
3
4
  • 1 planta

Santander 155

155 m²

Superficie construida

155,20 m²

Superficie construida
  • 132,00 m²   vivienda
  • 23,20 m²  porche