• 2 plantas

Balear 150

150 m²

Superficie construida
3
3
  • 2 plantas

Balear 150

150 m²

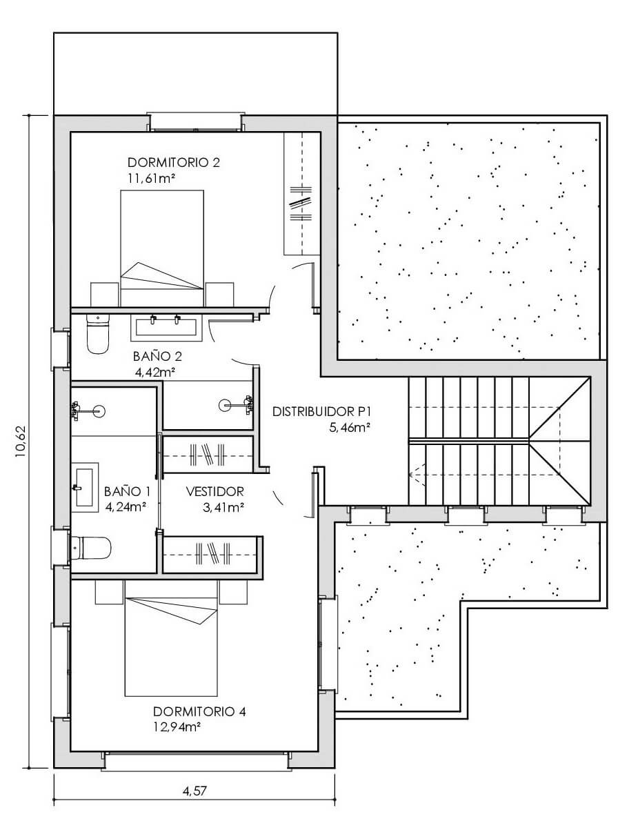
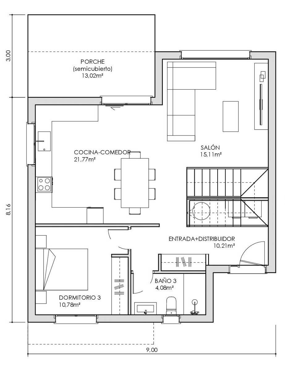
Superficie construida

120 m²

Superficie construida
  • 90,49 m²   planta baja
  • 60,39m²  planta primera

120 m²

Superficie construida
  • 90,49 m²   planta baja
  • 60,39m²  planta primera